家电论坛

广告合作
 注册  找回密码

QQ登录

只需一步,快速开始

手机号码,快捷登录

手机号码,快捷登录

查看: 13262|回复: 118

[空调] 不得不说,富士通空调的性价比无法拒绝

  [复制链接]

38

主题

1164

帖子

15

威望

中级会员

Rank: 3Rank: 3Rank: 3

交易诚信度
0
注册时间
2008-12-15
发表于 2024-7-30 21:22 | 显示全部楼层 |阅读模式

马上注册 家电论坛,众多有奖活动等你来参与!

您需要 登录 才可以下载或查看,没有账号?注册

x
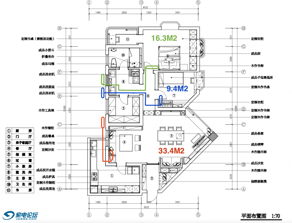
之前发帖问过空调选择的事情,获取一些信息之后开始做功课
平面.png

我房子的平面如图,因为建筑结构的原因,空调只能放在盥洗室和杂物间所在的外墙上,不算是监狱机位,但和对面户型空调外机对着吹,而且铜管距离得加长。好在所有需装空调的房间都朝东或者朝北,空调外机挂西墙,但完全晒不到。
现在的想法和问题是:
客厅:算上走廊的话,面积有33.4M2,不算走廊就29M2,铜管长度4.5M。如果不考虑制热,标称使用面积22~32M2的2P空调合适吗?是不是还是得选择2.5P或者3P的机器?
主卧:还是用之前的三电ZH12机,铜管加长到6.5M。
儿童房:根据之前的大家的说法以及我自己做的功课,确实1P空调没啥意思,加上铜管需要加长到5.5M,空调效果会打折扣,所以儿童房还是决定上1.5P挂机。请问这样效果能得到保障吗?
最后说品牌。
大金最贵,贵到离谱,再加上我已经有一台三电的旧机器了,所以最先淘汰。
三电应该比较合适,首先它有2.5P机器,和我客厅面积匹配最完美。其次,我有台三电,如果再买两台,品牌统一,售后可能会好点。只是价格确确实实偏高。
富士通,拥有难以拒绝的性价比,同一渠道(某东)比较下来,富士通要便宜7~8K。呃......想听听大家的看法。

方案.png
回复

使用道具 举报

42

主题

1295

帖子

0

威望

初级会员

Rank: 2Rank: 2

交易诚信度
0
注册时间
2010-11-15
发表于 2024-7-30 22:53 来自家电论坛网手机触屏版 | 显示全部楼层
富士通低频很好,直接1.5匹就可以了。延长铜管5.5米没有问题
回复 支持 0 反对 1

使用道具 举报

0

主题

220

帖子

0

威望

新手上路

Rank: 1

交易诚信度
0
注册时间
2023-10-24
发表于 2024-7-31 03:31 | 显示全部楼层
富士通的东西看着是挺好,但是空调是一个系统工程,真正要做到完美不光是机器,还得看安装售后等。
如果你所在的城市有富士通自己的安装团队,还是可以冲的。如果是外包的,那还是建议你选个大点的品牌

点评

我主打自己装  详情 回复 发表于 2024-9-2 13:02
确实如此,我看网上大部分富士通的问题都是安装造成的,所以不准备京东下单,还是找个当地经销商,给工人师傅一点小费,守着装算了 因为还有一台三电ZH要移机,注定是件劳神费力的事儿  详情 回复 发表于 2024-7-31 08:47
回复 支持 反对

使用道具 举报

15

主题

3334

帖子

0

威望

中级会员

Rank: 3Rank: 3Rank: 3

交易诚信度
0
注册时间
2022-7-9
发表于 2024-7-31 08:14 | 显示全部楼层
富士通以前只买上海的,后来卖江浙沪了,,其他的地方,安装和售后基本是外包的,

点评

上海也是外包的,不过安装还可以。  详情 回复 发表于 2025-7-22 21:10
关键是安装团队,另外自己要掌握点基础安装知识,用来判断安装师傅是否专业规范操作。我在老家县城的房子,都买了2台富士台了,还是我们县第一家购买安装富士通用户。我对这个品牌很有好感,工作买的第一台笔记本就  详情 回复 发表于 2024-8-30 00:04
回复 支持 反对

使用道具 举报

7

主题

1722

帖子

0

威望

初级会员

Rank: 2Rank: 2

交易诚信度
0
注册时间
2024-7-9
发表于 2024-7-31 08:35 | 显示全部楼层
本帖最后由 x!aobb 于 2025-4-9 13:43 编辑


性价比: 国货才是性价比, 不到一半的价格,格美都算靠谱,特别是华凌2p机,2000块暴击诺可力才是性价比

点评

富士通也是10年啊,还不用加60多块钱。。。。。。。  发表于 2024-8-14 22:59
十年前买三电ZH的时候富士通就是网红,能红十年,比董明珠也不遑多让了 国产一直在用,包括格力,就是你说的比富士通1.5P还便宜的3P大挂,比这次准备留给租客了 昨天才体会了那种特有的尴尬:朋友来,坐客厅喝茶,  详情 回复 发表于 2024-7-31 09:08
回复 支持 0 反对 1

使用道具 举报

38

主题

1164

帖子

15

威望

中级会员

Rank: 3Rank: 3Rank: 3

交易诚信度
0
注册时间
2008-12-15
 楼主| 发表于 2024-7-31 08:47 来自家电论坛网手机触屏版 | 显示全部楼层
TERRY.G 发表于 2024-7-31 03:31
富士通的东西看着是挺好,但是空调是一个系统工程,真正要做到完美不光是机器,还得看安装售后等。
如果你 ...

确实如此,我看网上大部分富士通的问题都是安装造成的,所以不准备京东下单,还是找个当地经销商,给工人师傅一点小费,守着装算了
因为还有一台三电ZH要移机,注定是件劳神费力的事儿

点评

本论坛的大量反复坏的故障贴,可不是安装问题  详情 回复 发表于 2024-7-31 08:54
回复 支持 1 反对 0

使用道具 举报

7

主题

1722

帖子

0

威望

初级会员

Rank: 2Rank: 2

交易诚信度
0
注册时间
2024-7-9
发表于 2024-7-31 08:54 | 显示全部楼层
黑猫中队长 发表于 2024-7-31 08:47
确实如此,我看网上大部分富士通的问题都是安装造成的,所以不准备京东下单,还是找个当地经销商,给工人 ...

本论坛的大量反复坏的故障贴,可不是安装问题
回复 支持 反对

使用道具 举报

38

主题

1164

帖子

15

威望

中级会员

Rank: 3Rank: 3Rank: 3

交易诚信度
0
注册时间
2008-12-15
 楼主| 发表于 2024-7-31 09:08 来自家电论坛网手机触屏版 | 显示全部楼层
x!aobb 发表于 2024-7-31 08:35
富士通就是网红机

比性能:诺可力用3p机硬件,充1.5p卖,当然性能强了, 但价格比3p还贵

十年前买三电ZH的时候富士通就是网红,能红十年,比董明珠也不遑多让了
国产一直在用,包括格力,就是你说的比富士通1.5P还便宜的3P大挂,比这次准备留给租客了
昨天才体会了那种特有的尴尬:朋友来,坐客厅喝茶,空调设置的26度。过一会冷得不行,设置到28度,还是冷得不行。就问客人冷不冷?如果冷我就把空调关了。客人当然说冷,于是关机。一会儿,又热得不行,又征求大家意见然后开机……

点评

这种显然是风口吹人的论调,你买个一万的大金,它跑起来直吹人,你也得躲,只是你肌肉含量,脂肪含量的区别 有钱,你完全可以选择加铜管,直至最好的风口位置, 以前格力大金也是柔和的,只是19年后才开始变得  详情 回复 发表于 2024-8-1 21:29
10年前的富士通,那是诺可力Lcc刚出的时代,故障率没有离谱,大家追捧,这10年间,Lcc大量故障,网红机翻车 近20年,格力 大金 三菱电机 质量口碑一直很好, 还是老三样吧, 经历了岁月的洗礼  详情 回复 发表于 2024-7-31 09:35
回复 支持 0 反对 1

使用道具 举报

7

主题

1722

帖子

0

威望

初级会员

Rank: 2Rank: 2

交易诚信度
0
注册时间
2024-7-9
发表于 2024-7-31 09:35 | 显示全部楼层
本帖最后由 x!aobb 于 2025-4-9 13:42 编辑
黑猫中队长 发表于 2024-7-31 09:08
十年前买三电ZH的时候富士通就是网红,能红十年,比董明珠也不遑多让了
国产一直在用,包括格力,就是你 ...


近20年,格力 大金  三菱电机 质量口碑一直很好,  还是老三样吧, 经历了岁月的洗礼

点评

去年12lcc已换成12kz,目测论坛上12lcc翻车好几个朋友还是上了新一代诺可力. 主要原因是国内没有比诺可力制热猛用料的好的机子.  详情 回复 发表于 2024-8-1 19:26
回复 支持 2 反对 1

使用道具 举报

12

主题

1073

帖子

2

威望

中级会员

Rank: 3Rank: 3Rank: 3

交易诚信度
0
注册时间
2009-7-26
发表于 2024-8-1 19:26 | 显示全部楼层
x!aobb 发表于 2024-7-31 09:35
10年前的富士通,那是诺可力Lcc刚出的时代,故障率没有离谱,大家追捧,这10年间,Lcc大量故障,网红机翻 ...

去年12lcc已换成12kz,目测论坛上12lcc翻车好几个朋友还是上了新一代诺可力.
主要原因是国内没有比诺可力制热猛用料的好的机子.

点评

2000块的华凌2p机可以一战  详情 回复 发表于 2024-8-2 09:48
回复 支持 1 反对 1

使用道具 举报

44

主题

3496

帖子

3

威望

中级会员

Rank: 3Rank: 3Rank: 3

交易诚信度
0
注册时间
2020-7-8
发表于 2024-8-1 20:14 来自家电论坛网手机触屏版 | 显示全部楼层
楼主应该分享下自家的富士通作业,再叫别人上

点评

所以呢?  详情 回复 发表于 2024-9-8 21:59
还没下手呢 大夏天的,带家人出去旅游了  详情 回复 发表于 2024-8-11 12:26
回复 支持 1 反对 0

使用道具 举报

44

主题

3496

帖子

3

威望

中级会员

Rank: 3Rank: 3Rank: 3

交易诚信度
0
注册时间
2020-7-8
发表于 2024-8-1 21:29 来自家电论坛网手机触屏版 | 显示全部楼层
黑猫中队长 发表于 2024-7-31 09:08
十年前买三电ZH的时候富士通就是网红,能红十年,比董明珠也不遑多让了
国产一直在用,包括格力,就是你 ...

这种显然是风口吹人的论调,你买个一万的大金,它跑起来直吹人,你也得躲,只是你肌肉含量,脂肪含量的区别

有钱,你完全可以选择加铜管,直至最好的风口位置,

以前格力大金也是柔和的,只是19年后才开始变得直接,然而,大金也变得直接了,

如果你懂曲线,你会发现三菱拉升的甚至更剧烈,你直吹人,五菱也没用何况富士通

点评

你这纯粹是扯淡的论调 请问你哪只眼睛看到我的空调是直对人吹了? 我的那台3P大挂挂在沙发上,按风管机的说法就是人坐在回风口下面,这也叫直对人吹?  详情 回复 发表于 2024-8-11 12:15
回复 支持 反对

使用道具 举报

32

主题

327

帖子

0

威望

初级会员

Rank: 2Rank: 2

交易诚信度
0
注册时间
2024-5-30
发表于 2024-8-1 21:47 | 显示全部楼层
空调最佳的安装肯定是不延长铜管。3米的铜管都得循环1分钟以上制冷剂才能到达,而且工人焊接,残渣都进去了

点评

这个就没办法了,空调外机位限制,没办法的事情  详情 回复 发表于 2024-8-11 12:23
回复 支持 2 反对 0

使用道具 举报

7

主题

1722

帖子

0

威望

初级会员

Rank: 2Rank: 2

交易诚信度
0
注册时间
2024-7-9
发表于 2024-8-2 09:48 | 显示全部楼层
yurual 发表于 2024-8-1 19:26
去年12lcc已换成12kz,目测论坛上12lcc翻车好几个朋友还是上了新一代诺可力.
主要原因是国内没有比诺可力 ...

2000块的华凌2p机可以一战

点评

华凌2p这个制热不能和诺可力比,我有两台  详情 回复 发表于 2024-8-2 10:06
回复 支持 0 反对 1

使用道具 举报

12

主题

1073

帖子

2

威望

中级会员

Rank: 3Rank: 3Rank: 3

交易诚信度
0
注册时间
2009-7-26
发表于 2024-8-2 10:06 | 显示全部楼层
x!aobb 发表于 2024-8-2 09:48
2000块的华凌2p机可以一战

华凌2p这个制热不能和诺可力比,我有两台

点评

下面的帖子,您一定看过, 也是诺可力 华凌都安装了,看看作者的评价 [attachimg]10563593[/attachimg] 上海18平房间冬季取暖,有必要上富士通Z系列吗,还是省钱华凌he1或50hl1_≡ 家 电 类 ≡_白 色  详情 回复 发表于 2024-8-2 11:01
那就说说 制热差了百分比多少?  详情 回复 发表于 2024-8-2 10:46
回复 支持 1 反对 1

使用道具 举报

您需要登录后才可以回帖 登录 | 注册

本版积分规则

Archiver|手机版|手机版|客服:010-60152166 邮箱:zx@jd-bbs.com QQ:895456697|广告合作|账号注销|家电联盟网

京公网安备 11010602010207号 ( 京ICP证041102号,京ICP备09075138号-9 )

GMT+8, 2026-4-6 00:06 , Processed in 0.192126 second(s), 28 queries , Gzip On.

快速回复 返回顶部 返回列表