家电论坛

广告合作
 注册  找回密码

QQ登录

只需一步,快速开始

手机号码,快捷登录

手机号码,快捷登录

查看: 7025|回复: 19

SONY KA7ES 这样能否改成220v供电?

[复制链接]

42

主题

872

帖子

3

威望

中级会员

Rank: 3Rank: 3Rank: 3

交易诚信度
0
注册时间
2014-4-5
发表于 2019-6-27 18:36 | 显示全部楼层 |阅读模式

马上注册 家电论坛,众多有奖活动等你来参与!

您需要 登录 才可以下载或查看,没有账号?注册

x
本帖最后由 sz一只鱼 于 2019-6-27 18:38 编辑

各位老师,帮朋友调整卡座,发现这个100v机电源初级有两组绕组,初级一,初级二直流电阻都是59欧。
是否可以
一 将D与A连接断开,
二 断开B与C及电源连接
三 将B D连接
这样就可以直连220v电源了?
图片如下:
微信图片_20190626173716_调整大小.jpg

微信图片_20190626173723_调整大小.jpg


kt77222_调整大小.jpg



回复

使用道具 举报

38

主题

1267

帖子

0

威望

初级会员

Rank: 2Rank: 2

交易诚信度
0
注册时间
2016-2-22
发表于 2019-6-27 21:46 来自家电论坛网手机触屏版 | 显示全部楼层
不懂帮顶
回复 支持 反对

使用道具 举报

37

主题

5945

帖子

0

威望

中级会员

Rank: 3Rank: 3Rank: 3

交易诚信度
0
注册时间
2016-7-7
发表于 2019-6-27 21:54 | 显示全部楼层
可以把参数测好了试一下,万一烧了也有数据重新绕
回复 支持 反对

使用道具 举报

599

主题

1万

帖子

8

威望

高级会员

Rank: 4Rank: 4Rank: 4Rank: 4

交易诚信度
1
注册时间
2016-2-6
QQ
发表于 2019-6-28 07:58 来自家电论坛网手机触屏版 | 显示全部楼层
可以先把次级断开,然后用楼主的方法,而且要用调压器先把初级调到100伏,测量次级电压。经过换算判断是否初级为220伏依旧可行。
ps,现在初级的两组线圈并联的工作方式,是不是为了扩大功率,减少发热呢?
回复 支持 反对

使用道具 举报

28

主题

2093

帖子

12

威望

中级会员

Rank: 3Rank: 3Rank: 3

交易诚信度
0
注册时间
2017-10-13
QQ
发表于 2019-6-28 08:15 | 显示全部楼层
本帖最后由 wuyun4651 于 2019-6-28 08:27 编辑

  理论上完全可行!
183517ltga3ata93tbp90l.jpg
香港弦声音响
回复 支持 反对

使用道具 举报

2

主题

153

帖子

0

威望

新手上路

Rank: 1

交易诚信度
0
注册时间
2019-3-8
发表于 2019-6-28 09:24 | 显示全部楼层
回复

使用道具 举报

2

主题

176

帖子

0

威望

初级会员

Rank: 2Rank: 2

交易诚信度
0
注册时间
2016-5-1
发表于 2019-6-28 09:29 | 显示全部楼层
很想 知道答案 。不知道手里的ka5  的变压器参数是不是和ka7一模一样。
回复 支持 反对

使用道具 举报

54

主题

531

帖子

21

威望

高级会员

Rank: 4Rank: 4Rank: 4Rank: 4

交易诚信度
0
注册时间
2016-11-4
QQ
发表于 2019-6-28 09:30 来自家电论坛网手机触屏版 | 显示全部楼层
4楼的方法很好,可以串连后先上低压测次级,慢慢调高初级电压,观察次级电压变化,再仔细听变压器是否有异响,如果直到调到220v都很正常就可以。
回复 支持 反对

使用道具 举报

5

主题

460

帖子

0

威望

初级会员

Rank: 2Rank: 2

交易诚信度
0
注册时间
2010-10-5
发表于 2019-6-28 09:45 来自家电论坛网手机触屏版 | 显示全部楼层
这个KA7ES 是两个R型变压器独立提供数字与模拟部分的动力,不可串联两初级接220v,这样的话独立供电的意义荡然无存,再者两个变压器上的负载各不相同,势必造成220V不能平均分摊,负载小的将大大超过110V,时间一长,后果可想而知。还有KA5ES是单R供电
回复 支持 反对

使用道具 举报

2

主题

176

帖子

0

威望

初级会员

Rank: 2Rank: 2

交易诚信度
0
注册时间
2016-5-1
发表于 2019-6-28 09:49 | 显示全部楼层
初级每个绕组的额定电压都是100V  假设串联可行,额定电压要200V才行,目前市电电压普遍在230+  ,不知道可不可行,支持四楼方法。

ka7/5 用户手册

ka7/5  用户手册
貌似虚线标注的双初级只有ka7才有,ka5 要看实物才能确定。
回复 支持 反对

使用道具 举报

24

主题

1524

帖子

6

威望

中级会员

Rank: 3Rank: 3Rank: 3

交易诚信度
0
注册时间
2008-11-1
发表于 2019-6-28 09:49 | 显示全部楼层
还是外壳加变压器稳当
回复 支持 反对

使用道具 举报

7

主题

440

帖子

1

威望

初级会员

Rank: 2Rank: 2

交易诚信度
1
注册时间
2018-1-26
发表于 2019-6-28 09:50 | 显示全部楼层
LS是高手  学习了
回复 支持 反对

使用道具 举报

2

主题

176

帖子

0

威望

初级会员

Rank: 2Rank: 2

交易诚信度
0
注册时间
2016-5-1
发表于 2019-6-28 10:02 | 显示全部楼层
9楼说得没错。 22.jpg
回复 支持 反对

使用道具 举报

89

主题

5624

帖子

86

威望

超级会员

Rank: 6Rank: 6Rank: 6Rank: 6Rank: 6Rank: 6

交易诚信度
0
注册时间
2018-4-9
发表于 2019-6-28 10:51 | 显示全部楼层
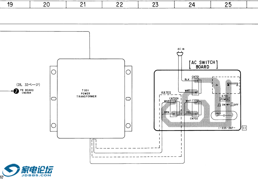
查了一下电路图,官方标示是这样的:图中没有显示变压器是分离铁芯,所以不能肯定是否绕组都在同一磁路上。但正如9楼和10楼两位朋友所说,即使可以串联但其电压还是属于200V这一级,并不适用于我们的220V市电(我们的家庭电压实际测量已经达到230~240V)。还是老老实实用隔离变压器吧。
QQ截图20190628104436.jpg
总有一种成就感、满足感、喜悦感伴随着各种折腾之后油然而生
回复 支持 反对

使用道具 举报

2

主题

176

帖子

0

威望

初级会员

Rank: 2Rank: 2

交易诚信度
0
注册时间
2016-5-1
发表于 2019-6-28 11:12 | 显示全部楼层
看图 33.jpg
回复 支持 反对

使用道具 举报

您需要登录后才可以回帖 登录 | 注册

本版积分规则

Archiver|手机版|手机版|客服:010-60152166 邮箱:zx@jd-bbs.com QQ:895456697|广告合作|账号注销|家电联盟网

京公网安备 11010602010207号 ( 京ICP证041102号,京ICP备09075138号-9 )

GMT+8, 2026-3-25 17:24 , Processed in 0.183244 second(s), 27 queries , Gzip On.

快速回复 返回顶部 返回列表